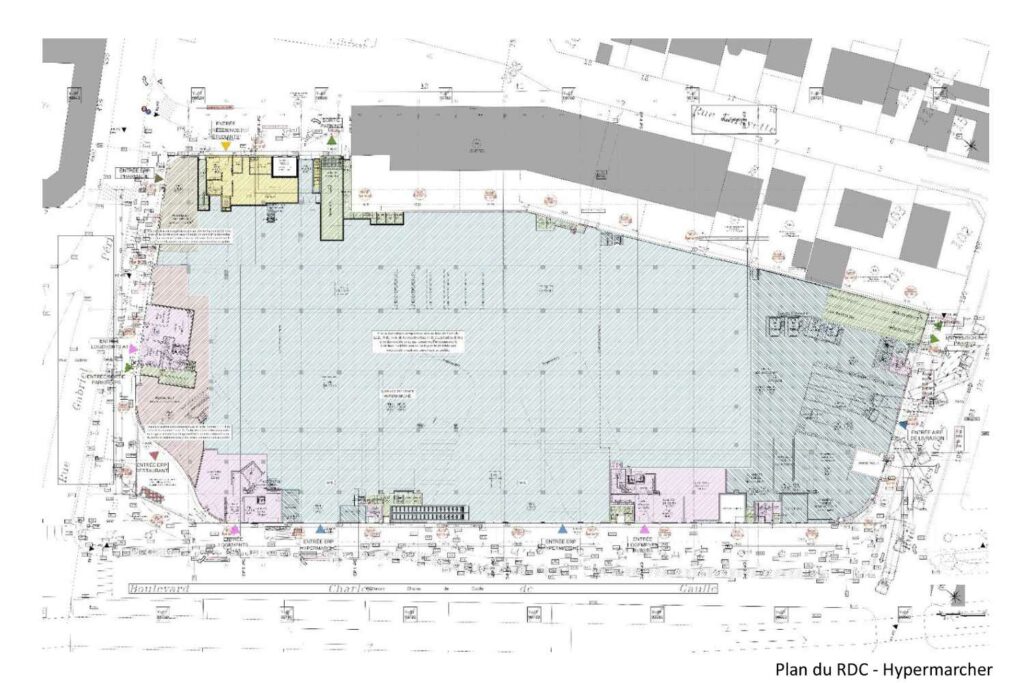
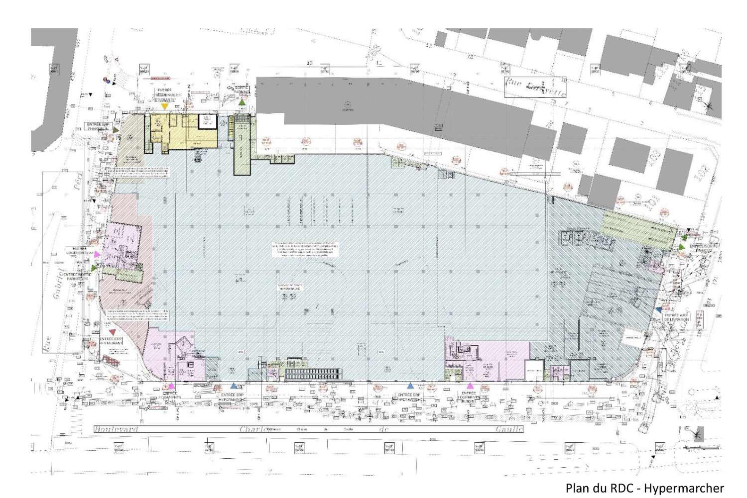
2Avenue Charles De Gaulle 920700 Colombes
Faisabilité, Permis de constuire, DCE
Architecte: DGM & Associés
Surfaces: 2 726 m² Résidence étudiante / 14 554m² logements / 13 411m² ERP
Certification: NF Habitat HQE
Maitre d’ouvrage: Brownfield
Calendrier: Livré 4T 2026
Cout de travaux: –







